
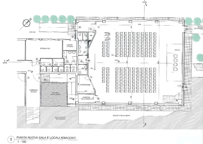
ARONA -21-02-2018 - Sarà presto dato
il via al progetto per la ristrutturazione dell'edificio dell'Istituto Giovanni XXIII, in disuso e abbandonato da oltre vent'anni, che ospitava la piscina. L'area sarà riconvertita in una sala polivalente, destinata ad aula magna e attività scolastiche complementari, oltre che all'utlizzo extra-scolastico per incontri, conferenze, concerti e spettacoli teatrali. Settimana prossima sarà portata in consiglio comunale una variazione di bilancio, che, insieme ad un'altra operazione tecnico-contabile, consentirà l'avvio del progetto. Si prevede, fra le altre cose, il parziale riempimento della vasca della piscina, la costruzione di nuovi bagni e due percorsi di accesso.


